DOWNTOWN BOULDER MEMBER
HOLIDAY PARTY

WEDNESDAY, DECEMBER 3rd, 2025

BOULDER WEATHER

EVENT DETAILS

Guest Count – 250

Location – Rembrandt Yard 

Start Time – 5:00 PM

REMBRANDT STAFF

Venue Director – Lianne VanWagner – 720-260-4194

Director of Events – Morgan Lifner – 303-720-6141

VENDOR CONTACT INFORMATION

SET-UP, STRIKE & BAR – Downtown Boulder Ambassadors, Melanie – 303-819-8809

CATERER – Dish Gourmet, Rebecca – 720-470-8906

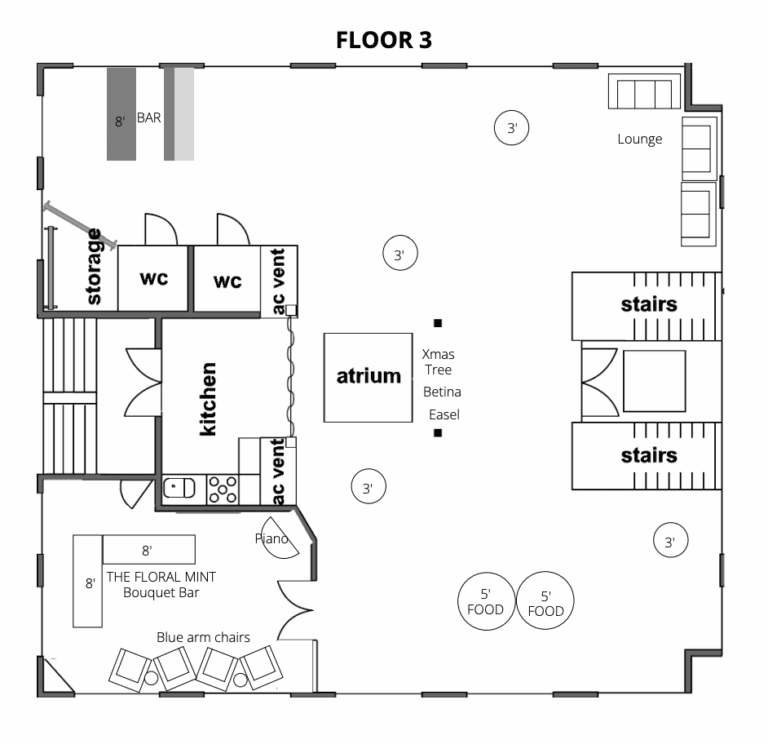
FLORAL BOUQUET BAR – The Floral Mint, Samantha – 303-819-2186

VENDOR ARRIVAL TIMES

2 PM – VOLUNTEERS & BARTENDERS

3/4 PM – CATERING

TIMELINE

2:00 PM – Doors open, set-up begins

5:00 PM – Doors open/Mingle

6:00 PM – Betina does a toast and lights “the tree” –
RY team transition the ceiling lights to ‘Golden Star’ hue setting at the countdown

6:30 PM – Soft last call at bar

6:45 PM – Bar closes

7:15 PM – Event Ends, cleanup begins

8:30 PM – Venue clean, vendors out

REMBRANDT YARD PROVIDING

  • 2-5 Easels
  • Extra 8.5″x11″ stanchion
  • Coffee/Hot Tea for 50ppl
  • Ivory Linens
  • Sound System & Spotify
  • Microphone

SPOTIFY PLAYLIST

FLOOR PLANS

GARAGE PARKING

(Rembrandt is the star on the map)

Additional parking is available across the street at the Hotel Boulderado for $4/hr or $30 overnight